重磅! | 衢州城投成功摘得“古城双修”安置房建设项目三大地块
12月3日上午,衢州色情a片 下属的市保障房建设开发有限公司在经过多轮激烈的竞争后,成功摘得“古城双修”安置房项目中的南湖广场北侧、南湖广场西侧、西区恒大西侧三大地块。

竞拍前晚土地竞买工作布置会

竞拍时集团领导亲自坐镇指挥

保障房公司严阵以待
拍卖前期,保障房公司在集团的坚强领导下,以“一夫当关万夫莫开”的决心和信心,夜以继日、克难攻坚,绝不出现一点纰漏、绝不放过一点问题,开展了周密细致的准备工作。

三大地块区域图

南湖广场北侧地块

南湖广场南侧地块

西区恒大西侧地块
南湖广场北侧地块

南湖广场北侧地块平面图

南湖广场北侧地块效果图
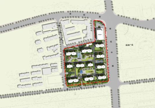
该地块位于衢州市劳动路以北、蝴蝶路以南,总占地面积26.74亩。基地现状大部分为建设用地,周边交通便利。现拟建安置房住宅小区,住宅设计总套数约232套,机动车位约242个,非机动车位约450个。
南湖广场西侧地块


南湖广场西侧地块效果图
该地块位于衢州市劳动路以南、荷花中路以西,总占地面积44.05亩。基地现状为停车场,地势平坦,周边交通便利。现拟建安置房住宅小区,住宅设计总套数约372套,机动车位约538个,非机动车位约766个。
西区恒大西侧地块

西区恒大西侧地块平面图

西区恒大西侧地块效果图
该地块位于衢州市西区内,位于九华中大道与锦西大道的东南角,在恒大御景半岛的西侧,总占地面积46.21亩。基地现状为荒地,四面视野开阔,周边交通便利。现拟建安置房住宅小区,住宅设计总套数约538套,机动车位约575个,非机动车位约996个。
据了解,本项目建成后将为衢州市区打造出布局合理、功能齐备、交通便捷、绿意盎然、生活方便、具有文化内涵的居住区,为南孔古城的保护与利用做贡献,推动南孔文化重重落地,使市民生活更加宜居。
三块土拍的成功拿地,标志着城投集团市场化改革走出了关键一步,也是集团积极参与市场竞争,打造城市综合运营服务商的有力举措。集团地产板块的首次试水,必将推动集团进一步加快转型步伐,增强自身造血功能,为“活力新衢州、美丽大花园”建设扛起城投担当,贡献城投力量。

当前位置: