仅剩10席!礼贤未来社区淳礼园首批临街商铺,剩余铺源热抢中!
衢州绿城城投·礼贤未来社区,位于衢州柯城区衢江畔,项目总建面约62万㎡,未来将容纳3300余户居住人口。
礼贤未来社区首个地块——淳礼园项目,5月25日竣工仪式圆满完成,交出了一份美好答卷,打造出衢州这座城市高品质项目的样本。
淳礼园项目预计今年上半年精装修交付,届时将有1300余户归家,幸福入住,未来社区生活就此徐徐展开。
(绿城城投·礼贤未来效果图 | 仅供参考 | 不作为要约或承诺)
淳礼园底商首批旺铺招租进行中!席位有限,抓紧抢驻!
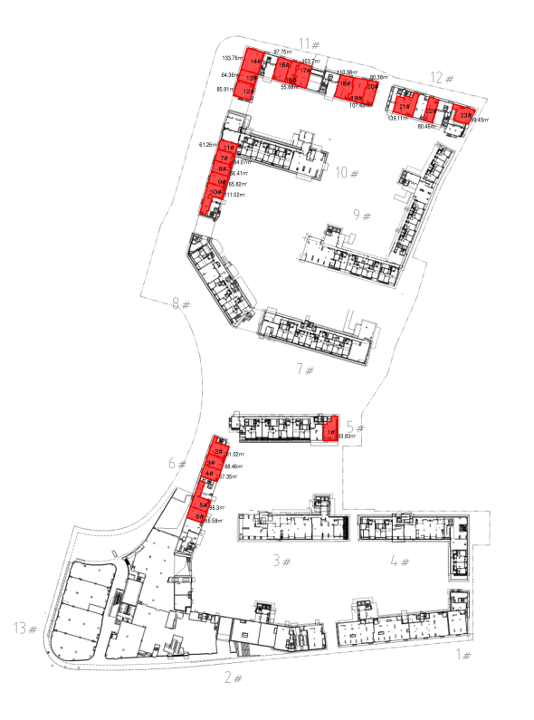
(礼贤未来社区·淳礼园首批22间商铺-标红区域 平面图)
业态建议:水果生鲜,休闲养生,教育培训,生活家居,美容美发等。招租详询:135 6700 6883招租地址:衢州市城市资产经营有限公司房产交易办公室(柯城区县西街153号南孔圣地文化旅游区游客服务中心二楼);工作日8:30-12:00,14:00-17:30)
绿城城投·礼贤未来社区东至新元路,西至衢江,北至衢江大桥劳动路,南至双港立交桥,与智慧新城隔江相望,是全省首批24个未来社区试点项目之一,也是首批联合国可持续社区标准试点项目。
项目规划单元100公顷,其中实施单元28公顷。总建筑面积65万平方米(其中地上42万平方米)。计划总投资53.35亿元。在规划建筑上秉持以人民为中心的理念,落实“三化九场景”的指标要求,践行低尺度、密路网、小街巷;地下通、车快捷、人易行;无围墙、无边界、无障碍;生态化、低碳化、智慧化;市井味、烟火味、人情味的45字规划建设方针,实现新型城镇化与产业智慧化、空间治理与社会治理的同步转型。
项目将打造为中国城市社区生活获得感领跑者、中国大花园城市高质量领跑者、中国基层治理标杆城市领跑者。

当前位置: